Η διαμόρφωση και η οργάνωση του χώρου μας έχει να πει πολλά για τη γενικότερη φιλοσοφία, αλλά και το όραμα της εταιρείας μας. Με χαρά και αφοσίωση δημιουργήσαμε τα γραφεία μας στα πρότυπα του εξωτερικού, δίνοντας ιδιαίτερη έμφαση στον ανθρώπινο παράγοντα. Πρωταρχικό μας μέλημα είναι να εξασφαλίσουμε άριστες συνθήκες εργασίας στους εργαζομένους μας και να τους παρέχουμε καθημερινά ένα ευχάριστο και οικείο περιβάλλον, που θα ενισχύει την δημιουργικότητα τους.
Ποια είναι τα πλεονεκτήματα των Open Space Office;
Δημήτρης Αγγελούδης : Διευθύνων Σύμβουλος της Cactus
Ποτέ δεν ήταν ευκολότερο για τους εργαζομένους μας να συνεργαστούν! Οι ανοιχτοί, ευέλικτοι και άνετοι χώροι διευκολύνουν την επικοινωνία μεταξύ τους και ενισχύουν τις διαπροσωπικές τους σχέσεις. Τα μηνύματα από κοντά αντικαθιστούν τις απρόσωπες τηλεφωνικές κλήσεις, προσδίδοντας έτσι περισσότερη αμεσότητα και διαδραστικότητα, αλλά καθιστώντας και τους ίδιους τους εργαζομένους περισσότερο προσβάσιμους, ιδίως σε καταστάσεις που πρέπει να συνεργαστούν για την επίλυση πολύπλοκων ζητημάτων. Με αυτόν τον τρόπο πετυχαίνουμε να μειώνουμε τους χρόνους ανταπόκρισης μεταξύ των συνεργατών, αυξάνοντας έτσι, τόσο την παραγωγικότητα, όσο και την αποδοτικότητά τους.
Γιατί επιλέξαμε το Open Space Office Style στην εταιρεία μας;
Ανέστης Σταμάτης: Πρόεδρος της Cactus
Υπάρχει λόγος που επιλέξαμε «ανοιχτά» γραφεία στην εταιρεία μας και δεν είναι τυχαίο που έχουν γίνει τόσο μεγάλη τάση, κυρίως στο εξωτερικό. Το Open Space Office υπόσχεται συνεργασία και ολοένα και πιο στενές ομάδες, που μπορούν μαζί να λύσουν περίπλοκα προβλήματα. Η διαρκής αλληλεγγύη και υποστήριξη μεταξύ των συνεργατών μας είναι επίσης στη φιλοσοφία της εταιρείας μας, διότι έτσι θεωρούμε ότι όλοι μπορούν να εξελιχθούν καλύτερα, αντλώντας ερεθίσματα ο ένας από τον άλλον.
Είναι προφανές, ότι οι ομάδες που δημιουργούνται νιώθουν πιο κοντά μεταξύ τους και αλληλοεπιδρούν, με αυτή τη διάταξη του χώρου. Έρευνες έχουν δείξει, άλλωστε, ότι όσο πιο κοντά είναι μεταξύ τους οι εργαζόμενοι, τόσο πιθανότερο είναι να αλληλοεπιδρούν . Η γενικότερη κουλτούρα και οι νόρμες της εταιρείας μας βασίζονται στη διαφάνεια, δεδομένου ότι όλοι μπορούν να ακούσουν και να δουν τα πάντα, πράγμα που αποτρέπει σε μεγάλο βαθμό την πιθανότητα εμφάνισης μυστικοπάθειας. Ένας ακόμη λόγος είναι ότι αυξάνεται το αίσθημα της ισότητας μεταξύ συναδέλφων και αυτό μπορεί να δημιουργήσει περισσότερη άνεση, αλλά και εμπιστοσύνη μεταξύ τους.
Με λίγα λόγια, ο ανοιχτός χώρος γραφείου είναι σαν ένας λευκός καμβάς, που ανάλογα τις εκάστοτε ανάγκες μπορεί να προσαρμόζεται για την καλύτερη διεξαγωγή δραστηριοτήτων, ειδικότερα σε περιπτώσεις που χρειάζεται να συνεργαστούν περισσότερα από ένα τμήματα.
,

.

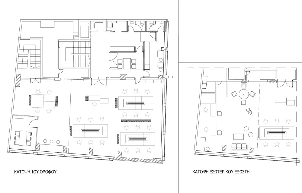
Η Διαμόρφωση των Open Space Office
Το τεχνικό γραφείο VKCW των Βαρδουνιώτη – Κονιόρδου ανέλαβε τη μελέτη και κατασκευή των σύγχρονων γραφείων της εταιρείας μας. Σύμφωνα με την μελετητική ομάδα, ο χώρος προσφερόταν για τον σχεδιασμό κάτοψης ανοιχτής διάταξης (Open Space), ενώ παράλληλα απαιτούνταν σαφής διαχωρισμός μεταξύ των σταθμών εργασίας.
Αυτό επιτεύχθηκε με την χρήση εσωτερικής φύτευσης. Κρίσιμο σημείο στη μελέτη αποτέλεσε ο σχεδιασμός, η κατασκευή και η εφαρμογή τριών τραπεζοειδών ηχοαπορροφητικών τεμαχίων μεγάλου μήκους και τριών διαφορετικών υλικών, τα οποία στηρίχθηκαν στην οροφή.
Στη μελέτη, τέλος, λήφθηκε υπόψη το μεγάλο ύψος και κατ’ επέκταση ο εσωτερικός εξώστης, ο οποίος αναδείχθηκε με τη χρήση γυάλινων στοιχείων, σε συνδυασμό με έντονα μεταλλικά πλαίσια. Στην οροφή που βρίσκεται στα 6 μέτρα από το δάπεδο τοποθετήθηκε σχάρα καλωδιώσεων σε μορφή κανάβου, η οποία αποτέλεσε το κύριο σύστημα διέλευσης των καλωδιώσεων.
Ένας πλήρως λειτουργικός και άκρως αισθητικός χώρος στην καρδιά της πόλης πήρε σάρκα και οστά και αποτελεί, πλέον, έναν ευχάριστο και δημιουργικό χώρο καθημερινά για τους εργαζομένους μας.

Λίγα Λόγια για Εμάς
Η Cactus είναι ένα 360° Digital Agency με έδρα τη Θεσσαλονίκη και περισσότερα από 400+ Projects στην Ελλάδα και το εξωτερικό. Δραστηριοποιείται στον κλάδο κατασκευής ιστοσελίδων από το 2010, ενώ από το 2018 έχει υιοθετήσει μια ολιστική προσέγγιση των επιχειρήσεων, η οποία περιλαμβάνει όλες τις Digital υπηρεσίες.
Στην Cactus αντιλαμβανόμαστε το κάθε project ως μια προοπτική ανάπτυξης των επιχειρήσεων. Τα πάντα αρχίζουν από την ανάλυση των αναγκών, των διαθέσιμων πόρων και των φιλοδοξιών του εκάστοτε πελάτη μας, με σκοπό να πετύχει τους στόχους του!
Με βάση αυτή τη φιλοσοφία δημιουργήσαμε μια σύμπραξη με τη Revival SA, με τη συμμετοχή της στο κέντρο ψηφιακού μετασχηματισμού της Cactus. Δύο επιχειρήσεις με όραμα, κοινή φιλοσοφία και πελατοκεντρική προσέγγιση ενώνουν τις δραστηριότητές τους, με στόχο την παροχή υψηλής ποιότητας καθετοποιημένων υπηρεσιών στους πελάτες τους, με στόχο τη μεγιστοποίηση του κέρδους.
Μάθετε περισσότερα για την Cactus!
Τηλ: 2311 822 997
Cactusweb.gr
Tεχνικό γραφείο VKCW: info.vkcw@gmail.com



